Jump to content

Welcome to RennTech.org Community, Guest

There are many great features available to you once you register at RennTech.org
You are free to view posts here, but you must log in to reply to existing posts, or to start your own new topic. Like most online communities, there are costs involved to maintain a site like this - so we encourage our members to subscribe or donate. All subscriptions and donations go to the costs operating and maintaining this site. We prefer that guests take part in our community and we offer a lot in return to those willing to join our corner of the Porsche world. This site is 99 percent member supported (less than 1 percent comes from advertising) - so please consider an annual subscription or donation to keep this site running.

Here are some of the features available - once you subscribe RennTech.org

  • View Classified Ads
  • DIY Tutorials
  • Porsche TSB Listings (limited)
  • VIN Decoder
  • Special Offers
  • Paint Codes
  • Registry
  • Videos System
  • View Reviews
  • and get rid of this welcome message

It takes just a few minutes to register, and it's quality Porsche information at a low cost.

Contributing Members also get these additional benefits:
(you become a Contributing Member by subscribing or donating money to the operation of this site)

  • No ads - advertisements are removed
  • Access the Contributors Only Forum
  • Contributing Members Only Downloads
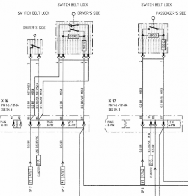
  • Send attachments with PMs
  • All image/file storage limits are substantially increased for all Contributing Members
  • Option Codes Lookup
  • VIN Option Lookups (limited)

Loren

Admin
  • Posts

    37,816
  • Joined

  • Days Won

    631

Everything posted by Loren

  1. Fault 1 Possible cause of fault - Faulty fuse - Airbag warning light faulty (no bulb, cannot be exchanged) - Short circuit to B+/ground or open circuit in the wiring between the instrument cluster and the airbag triggering unit Fault 3 Possible cause of fault - Low battery positive voltage (this is fairly common if the battery has been recently disconnected). Fault 195 Fault codes above 100 Possible cause of fault - Airbag triggering unit faulty Check the voltage supply (battery and charging circuit) before replacing any control module.
  2. What is the fault code(s)?
  3. P0154 Oxygen Sensor Ahead of TWC, Bank 2 – Interruption of Signal P1128 Oxygen Sensing Adaptation, Idle Range, Bank 1 – Above Limit P1130 Oxygen Sensing Adaptation, Idle Range, Bank 2 – Above Limit P0300 Misfire Detection (Sum Total) P0301 Misfiring, Cylinder 1 P0302 Misfiring, Cylinder 2 P0303 Misfiring, Cylinder 3 These codes say your fuel mixture is too rich for the DME to control - to the point of misfires. Since it is only on one side of the engine I think you should start looking for leaks and/or an air/oil separator problem. Unless someone just changed the spark plugs (and cracked the coils) there is no reason for 3 plugs to all misfire at the same time other than a leak on that side of the engine.
  4. I think you want D17 on the DME (TN-signal) - that is what was used for all the older cars.
  5. http://www.renntech.org/forums/index.php?s...post&p=1991 He has lots of pics in the link at the bottom of his post. (http://gallery.rennlist.com/cayennegallery...ing-Air-Filters)
  6. Most often it is the trigging spring in the steering wheel. Do you know the fault code number?
  7. I am sorry about your misfortune. Had you purchased the car in the state of California they would have been required to make it pass smog. "Section 24007 (B)(2) of the Vehicle Code states it is the responsibility of the seller to provide a valid smog certificate at the time of delivery of the vehicle. There is no provision in the law to sell a vehicle "as is."" "24007. (a) (1) No dealer or person holding a retail seller's permit shall sell a new or used vehicle that is not in compliance with this code and departmental regulations adopted pursuant to this code, unless the vehicle is sold to another dealer, sold for the purpose of being legally wrecked or dismantled, or sold exclusively for off-highway use." " (B) (1) Except as provided in Section 24007.5, no person shall sell, or offer or deliver for sale, to the ultimate purchaser, or to any subsequent purchaser a new or used motor vehicle, as those terms are defined in Chapter 2 (commencing with Section 39010) of Part 1 of Division 26 of the Health and Safety Code, subject to Part 5 (commencing with Section 43000) of that Division 26 which is not in compliance with that part and the rules and regulations of the State Air Resources Board, unless the vehicle is sold to a dealer or sold for the purpose of being legally wrecked or dismantled. (2) Prior to or at the time of delivery for sale, the seller shall provide the purchaser a valid certificate of compliance or certificate of noncompliance, as appropriate, issued in accordance with Section 44015 of the Health and Safety Code."
  8. I went over to Hergesheimer and they used their big computer (PIWIS..?) to read the codes, airbag light was there... since it wasnt the seatbelt error for the airbag they couldnt reset it for liability issues... although they could have with their tool. With that said, someone is coming and checking my car out on Sunday to buy it and my durametric doesnt clear this airbag code! Anyone know what I can do??? Anyone have one of those PIWIS or PST2 computers in southern california.. Burnout the bulb?? If they looked at it with a PIWIS or PST2 then they saw the fault code. What is the fault code(s)?
  9. hhmmm no... do you know if there is an option cross-reference online somewhere ?? The MY05 Cayenne order guide (with all the available options) is here.
  10. On a 996 C2 (narrow body) 50 or 52 mm offset will fit for the front and 63 or 65 mm will fit the rear just fine.
  11. Yes, if you disconnect the battery for 5 minutes or more the DME will go back to it's basic program. It will then re-learn to your driving style. You won't see a huge difference but you will see some. The control unit for the Tiptronic does the same - so I guess Tiptronic drivers might see the most change.
  12. Item 9 I believe? You will need to tell me what color/finish for a correct part number.
  13. IMHO a 6 point harness is the way to go.
  14. You should always change your front spoiler and rear wing together so you do not upset the cars balance at high speed. Have you looked at Porsche's Aerokit for the TT?
  15. Porsche puts their suspension kits together with performance and safety in mind. Stiffer rear springs would make me leery of oversteer issues. Porsche suspension kits are "tuned" to the weight and weight distribution of the car with the options specified. You can always do what you want, but I trust Porsche - if they could safety use the same springs for both they would.
  16. Yes the intercoolers are also different (for GT2 and X50).
  17. That is correct - sometimes the dealer changes the radio and forgets to change the code documented in the DME. It is best to read the code right off the display front panel (see the how to in previous posts here). So, is this the correct number you want me to look up? Yes please!!! Try 9020 or 9018 I will try. Radio is in "WAIT" mode right now. Thanks! Loren, Neither codes worked. Here's some additional info on radio. Can you help? Becker 1 Type 4462 Ser 15062539 Gal 00 CDP2081 Thanks! You meed to read through this thread - if the serial number you gave me is correct and the code(s) I give you do not work -- then you you need to contact a dealer or Becker.
  18. Try 4886 or 4884
  19. http://www.renntech.org/forums/index.php?s...ost&p=31056
  20. Fault code 46 Central locking synchronization Possible cause of fault - Short circuit to ground/open circuit between alarm system control module and door locks - Door lock faulty Fault code 60 Central locking limit position 'Locked' not reached Possible cause of fault - Central locking switch faulty - Short circuit to ground/open circuit in wiring between the alarm system control module, central locking switch or door locks - Driver's/passenger's door lock faulty - Control module faulty Fault code 45 Servo motor, central locking system, short circuit to B+ Possible cause of fault - Short circuit to voltage in the wiring between the control module and both door locks - Door lock faulty Fault code 33 Passenger compartment: monitoring sensor faulty Possible cause of fault - Passenger compartment monitoring faulty Hmm... 3 of the 4 faults point to a faulty door lock or a bad connection. Is this a Cab? If so is the carpet under the drivers seat (where the alarm control box is) wet? You may need a PST2 or PIWIS to nail it down for sure (by running the door lock tests). The Fault code 33 Passenger compartment: monitoring sensor faulty - may be a false code that can sometimes happen when there is movement when the alarm is set. I've seen theses before and usually they are cleared and don't come back.
  21. You disconnect the electrical connector for the buckle and read across that electrical connector. You can try it buckled and unbuckled - as I recall when buckled in changes by about 100 ohms.
  22. Do you have any diagrams or some such that would allow me to follow step by step the removal of the wheel housing liner and what to look for once removed. Much appreciated. Have you tried the site Search? There are at least a half dozen threads on P0446.
×
×
  • Create New...

Important Information

We have placed cookies on your device to help make this website better. You can adjust your cookie settings, otherwise we'll assume you're okay to continue.